STUDIO 5A THEATRE DESIGN Spring 2013 Professor: Matt Gillis













This project utilizes many of the conceptual tools of cinema to delve into architectural space. It employs elements of mise-en-scene such as lighting, perspective, direction, setting, depth, time, foreground, mid-ground, and background as analytical tools to explore a three-dimensional space. The analysis commences by examining ‘A Touch of Evil,’ directed by Orson Welles in 1958. The plot revolves around the investigation of a murder, oscillating between the US and the Mexican Border.
The director intentionally manipulated light throughout the entire film to further develop the concept of the unknown. The analysis focuses on dissecting a series of shots between minutes 13:12 – 14:05 of the film, depicting a confrontation between the female character Susan and an unknown person stalking her with a flashlight from a building across the hotel room where she is staying. The analysis targets levels of porosity, considering it in terms of three-dimensional space, focus, and lighting. These factors significantly influence the unveiling of the scene, which can later inform the architecture.
The analysis begins by contrasting black and white through focus in each scene, organizing it in terms of percentage where the smaller percentage denotes the focus of the scene. The scene is also divided into foreground, mid-ground, and background to further clarify the focus. Additionally, it is dissected in terms of perspective, mapping the site based on what the camera captures in each scene.
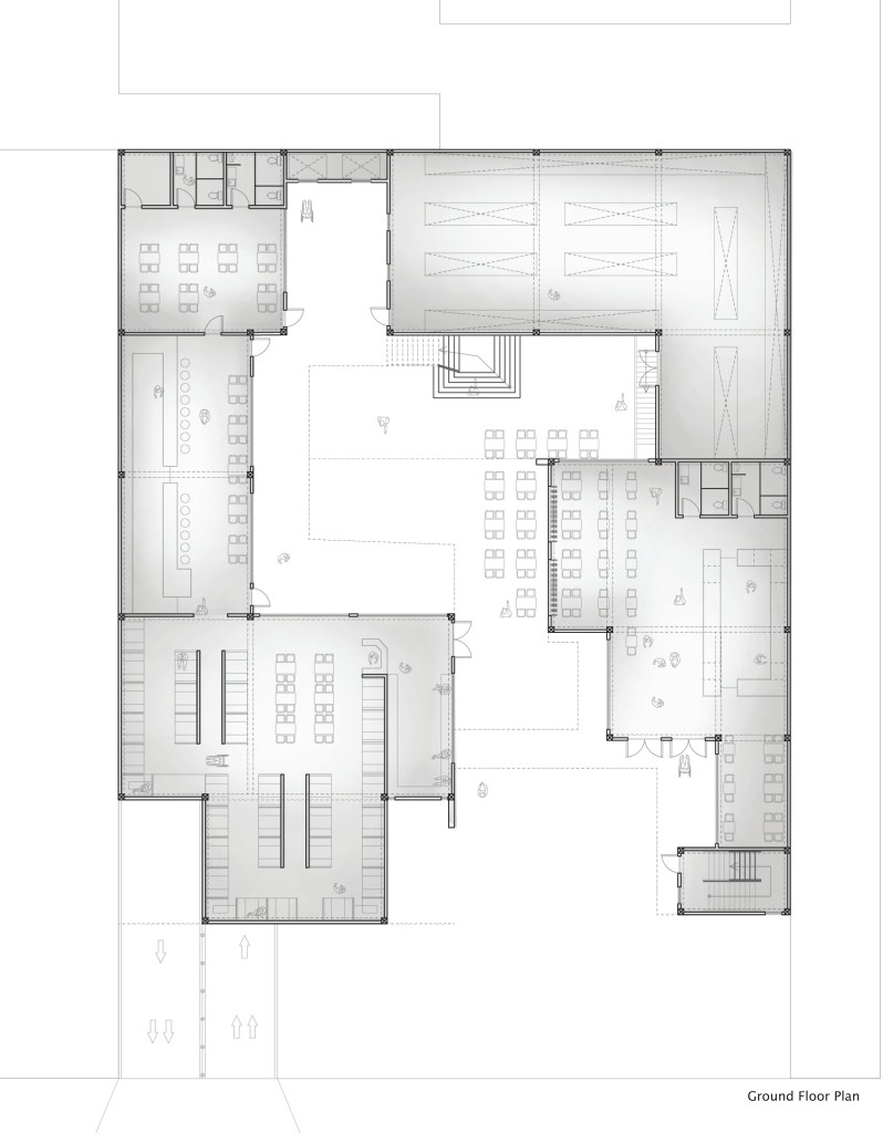
The project site is located a quarter block southwest from the corner of Broadway and 2nd Street, surrounded by neighboring buildings on all sides, thus presenting a single façade. Similar to ‘Touch of Evil,’ which played with focus, the program is broken down based on population forecasts over the course of a year, translating into an algorithm that determines the porosity of each program in the space. Pairing the most porous programmatic areas with the least porous accentuates that no part of the building will be left unused throughout the year.
The building’s form is derived using the same technique as analyzed in ‘Touch of Evil,’ recreating a perspective grid in both plan and section to unveil both the programmatic features and physical empathies of the form. The circulation of the building is designed to traverse the split courtyard dividing the left and right halves by creating two distinct paths that converge on each other on every floor.

